Notice: Complete Application and Public Meeting for Zoning By-law Amendment at 5262 & 5272 Aurora Road
File Number: ZBA25.012
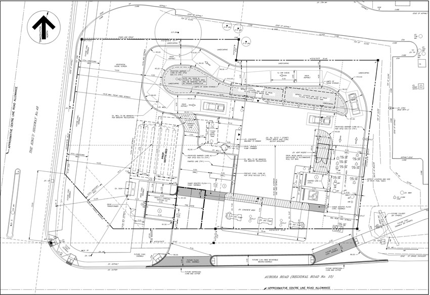
Location: 5262 and 5272 Aurora Road
Applicant: Bessant Pelech Associates Inc.
Proposed Development
The Town has received a Complete Application for Zoning Bylaw Amendment for the subject property. The Town is holding a Statutory Public Meeting to consider the proposed Zoning Bylaw Amendment application to permit a car wash use accessory to an existing gas bar.
What are the Proposed Changes?
Rezone 5262 and 5272 Aurora Road from General Commercial (CG) and Development Reserve (D) to General Commercial Exception Eighteen [CG(xx)] to facilitate the addition of a car wash accessory to the existing gas bar.
Site-specific changes to the CG Zone to facilitate the development which include:
Reduction to the minimum number of parking spaces.
Reduce landscaping requirements along the southern frontage.
Formalize existing setbacks in the front and rear yard for the existing structures.
Public Meeting
November 19, 2025 at 7:00 pm
Council Chambers, Town Hall
townofws.ca/cmlivestream
This is a way for you to offer input and to get involved.
Any person may attend the Public Meeting in person or electronically and make written and/or verbal representation either in support of or against the proposed Zoning Bylaw Amendment application.
If you wish to speak, please contact the Town Clerk at clerks@townofws.ca for more information or to register to speak electronically before noon of the day prior to the Public Meeting.
Public Meetings will be recorded and made available online.
Appeal Procedure
In accordance with Bill 185, which received Royal Assent on June 6th, 2024, the Minister, the applicant, or a specified person, public body, or registered owner of any land to which the By-law will apply, who made oral submissions at a Public Meeting or written submissions to Town Council prior to the passage of the By-law, may appeal the By-law to the Ontario Land Tribunal. Third-party appeals are no longer permitted – meaning neighbours, individuals, companies, and ratepayer groups can no longer appeal development applications.
If a person or public body would otherwise have an ability to appeal the decision of the Town of Whitchurch-Stouffville to the Ontario Land Tribunal but the person or public body does not make oral submissions at a public meeting or make written submissions to Town of Whitchurch-Stouffville before the amendment is passed, the person or public body is not entitled to appeal the decision.
If a person or public body does not make oral submissions at a public meeting or make written submissions to the Town of Whitchurch-Stouffville before the amendment is passed, the person or public body may not be added as a party to the hearing of an appeal before the Ontario Land Tribunal unless, in the opinion of the Tribunal, there are reasonable grounds to do so.
In the event of an appeal to the Ontario Land Tribunal, your written submissions and contact information will be provided to the Tribunal. If you do not wish your contact information to be released to the Tribunal by the Town, please advise the Town accordingly in writing.
Additional Information
Additional information on the subject application(s), including information about appeal rights, is available by contacting the Town’s Planner, Owen Sluga, Development Planning via email at owen.sluga@townofws.ca or developmenthelp@townofws.ca or via phone at (905) 640-1900, extension 2422 .
Notice of Decision
If you wish to be notified of the decision of the Town of Whitchurch-Stouffville on the proposed Zoning Bylaw Amendment application, you must make a written request to the Town staff as noted above.
Location Map:

Site Plan:
