Notice of Public Meeting OPA25.003 & ZBA25.010
Notice of Public Meeting OPA25.003 & ZBA25.010
The Town has scheduled a Public Planning Meeting to introduce the Combined Official Plan and Zoning By-law Amendment applications for 5061 Stouffville Road.
Public Meeting Date: Wednesday, May 20, 2026 at 7:00pm in the Town Council Chambers (111 Sandiford Drive)
Proposed Official Plan Amendment and Zoning By-law Amendment
File Numbers: OPA25.003, ZBA25.010
Owner: Times 4750 Inc.
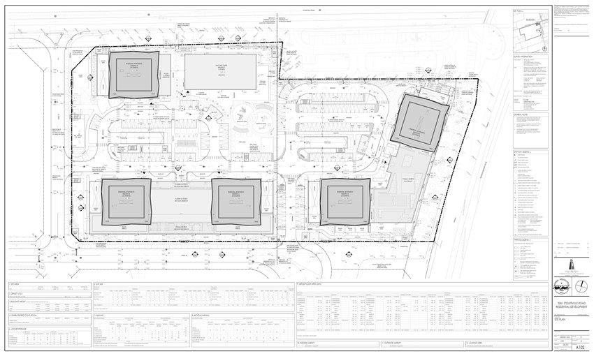
Location: 5061 Stouffville Road
Proposed Development
The Town has received a Complete Application for Combined Official Plan and Zoning By-law Amendments for the subject property. The Applicant is proposing a mixed-use development on the subject lands, consisting of five (5) residential towers, and a standalone commercial building for a daycare use. The residential towers range in height from nineteen (19) to twenty-nine (29) storeys, and the standalone commercial building is proposed to be one (1) storey in height.
What are the Proposed Changes?
Official Plan Amendment:
- Introduce site specific policies related to building height and floor space index (FSI), as well as permitting residential uses on the ground floor of an apartment building.
Zoning By-law Amendment:
- Rezone the subject lands from “Oak Ridges Moraine – Countryside” and “Development Reserve” to “Commercial Residential Mixed – Western Approach Exception (CM2(XX))” Zone.
- Introduce site specific regulations related to setbacks, floor space index (FSI), building height, and amenity area size requirements.

Additional Information:
Additional information on the proposed Application is available by contacting Kate Trombino, Planner I at kate.trombino@townofws.ca or via phone at 905-640-1900 ext. 2423.
Appeal Procedure:
In accordance with Bill 185, which received Royal Assent on June 6, 2024, the Minister, the Applicant, or a specific person, public body, or registered owner of any land to which the official plan amendment or by-law will apply, who made oral submissions at a Public Meeting or written submissions to Town Council prior to passage of the official plan amendment or by-law, may appeal the decision to the Ontario Land Tribunal. Third-party appeals are no longer permitted – meaning neighbours, individuals, companies, and ratepayer groups can no longer appeal development applications.
If a person or public body would otherwise have an ability to appeal the decision of the Town of Whitchurch-Stouffville to the Ontario Land Tribunal but the person or public body does not make oral submissions at a public meeting or make written submissions to Town of Whitchurch-Stouffville before the proposed official plan amendment or by-law is passed, the person or public body is not entitled to appeal the decision the Town of Whitchurch-Stouffville.
If a person or public body does not make oral submissions at a public meeting or make written submissions to the Town of Whitchurch-Stouffville before the proposed official plan amendment or by-law is passed, the person or public body may not be added as a party to the hearing of an appeal before the Ontario Land Tribunal unless, in the opinion of the Tribunal, there are reasonable grounds to do so.
In the event of an appeal to the Ontario Land Tribunal, your written submissions and contact information will be provided to the Tribunal. If you do not wish your contact information to be released to the Tribunal by the Town, please advise the Town accordingly in writing.
Notice of Decision:
If you wish to be notified of the decision of the Town of Whitchurch-Stouffville on the proposed Official Plan and Zoning By-law Amendment Applications, you must make a written request to The Corporation of the Town of Whitchurch-Stouffville, 111 Sandiford Dr., Stouffville ON L4A 0Z8, Attention: Development Services, or via e-mail at developmenthelp@townofws.ca
